Réf : 51
T4 de 91 m2 - FILLINGES
465 000 €
T4 de 91 m2 - FILLINGES Fillinges (74250)
En exclusivité chez WAYLKHOME, venez découvrir cette maison type mitoyenne T4 sur 2 niveaux dans une petite copropriété de seulement 7 logements.
Sur la commune de Fillinges, limitrophe à Bonne, à 5 minutes du Centre Hospitalier Alpes Léman et de l'accès à l'autoroute pour Genève et Annecy, venez découvrir ce bien situé au calme dans une impasse sans issue.
De belles prestations : carrelage 60x60 cm et parquet avec une large gamme de coloris, salles de bains aménagées, volets roulants électriques, chauffage au sol hydraulique par pompe à chaleur individuelle.
La résidence respecte la nouvelle réglementation énergétique: RE2020
Faibles charges de copropriété et d’énergie.
A PROPOS DE CE QUATRE PIÈCES:
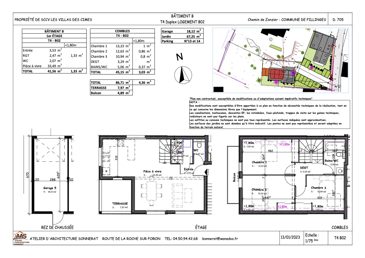
L'agence WAYLKHOME vous propose ce charmant appartement type T4 de 91,07m2, avec une jolie terrasse de plus de 8 m2 exposée à Ouest
La pièce à vivre est spacieuse et lumineuse avec ses 33,49 m2 et pourra accueillir votre future cuisine ouverte sur le séjour. Le dégagement dessert un cellier, des toilettes à l'étage 3 grandes chambres et salle debain. (voir plan)
Le logement est vendu avec deux places de parking extérieures ainsi qu'un grand garage de 18m2 et jardin cloturé.
Le bien est hors d'air hors d'eau disponible pour le 3
Honoraires charge vendeur.
Non soumis au DPE
Au plaisir de vous rencontrer.
L'équipe WAYLKHOME
Les informations sur les risques auxquels ce bien est exposé sont disponibles sur le site Géorisques: www.georisques.gouv.fr
Caractérisque
Valeurs
Code postal
74250
Surface habitable (m²)
91,07 m²
Surface loi Carrez (m²)
86,71 m²
Nombre de chambre(s)
3
Nombre de pièces
4
Etage
1
Nombre de niveaux
2
Ascenseur
NON
Vue
SALEVE
Caractérisque
Valeurs
Nb de salle d'eau
1
Cuisine
Sans
Mode de chauffage
Pompe à chaleur, Pompe à chaleur
Type de chauffage
Au sol, TRAD_TYPE_CHAUFF_AIR_EAU
Format de chauffage
Individuel, Individuel
Balcon
NON
Terrasse
OUI
Nombre de garage
1
Cave
NON
Nombre de parking
2
Exposition
Sud-Ouest
Année de construction
2023
Caractérisque
Valeurs
Copropriété
OUI
nombre de lots
7
plan de sauvegarde
NON
statut du syndic
pas de procédure en cours
Caractérisque
Valeurs
Prix de vente honoraires TTC inclus
465 000 €
Cette offre
vous intéresse
vous intéresse
Partager le bien
Détail des diagnostics énergétiques
DPE vierge